ÜBER DAS OBJEKT
Découvrez ce somptueux chalet de luxe situé au cœur d'Anzère, une station de ski prisée des Alpes suisse. L'accessibilité depuis la ville de Sion est très bonne toute l'année et à seulement 12 minutes de la sortie d'autoroute ou de l'aéroport de Sion. La station de Crans-Montana est à 15 minutes d'Anzère. Quatre parcours de golf se situent dans un périmètre de 30 km. Construit en 2017, ce chalet moderne allie parfaitement le charme traditionnel et le confort contemporain.
Caractéristiques principales :
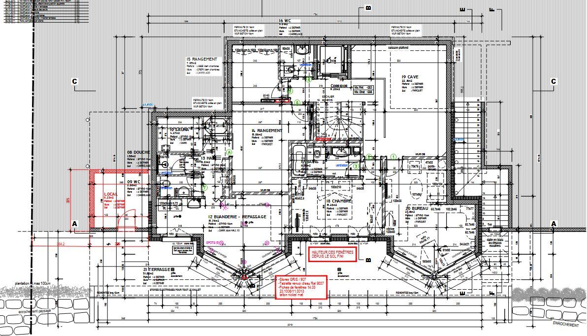
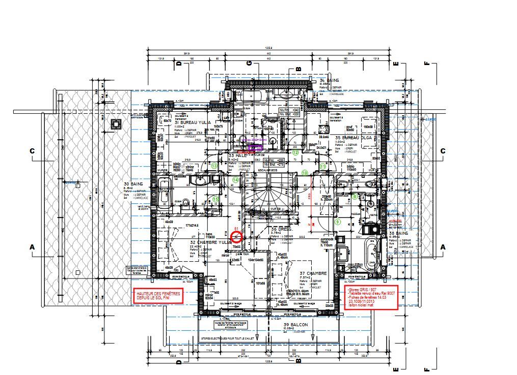
- Espace de vie généreux : Avec ses 250 m² de surface habitable répartis sur 3 étages, ce chalet offre un espace de vie exceptionnel. Que l'on soit une famille ou une famille avec des invités, chacun y trouvera sa place.
- 10 pièces spacieuses : Idéal pour une grande famille ou pour recevoir des invités. Outre une partie salon - cuisine généreuse, nous avons aussi un espace fitness avec la possibilité de rajouter un bain à bulles ou autres.
- Vues panoramiques : Profitez de vues imprenables sur les montagnes environnantes depuis les nombreux balcons et terrasses. La terrasse principale est abritée et une cheminée extérieure permet de faire des soirées grillades dans un décors magnifique et paisible.
- Certification Minergie : Garantissant une efficacité énergétique optimale et un confort de vie supérieur. Pompe à chaleur par géothermie, ventilation contrôlée, adoucisseur d'eau.
- Accessibilité : Équipé d'un ascenseur reliant les étages principaux, ce dernier permet également une accessibilité facilitée.
Commodités :
- Cheminée pour des soirées chaleureuses
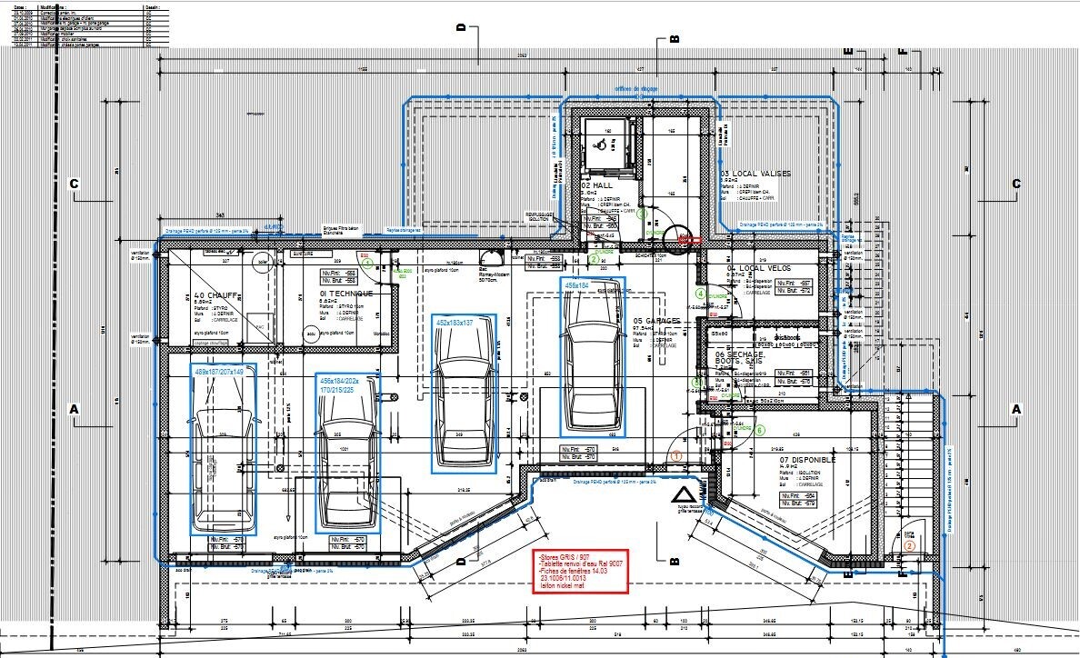
- Garage pour un stationnement pratique pour cinq voitures. Un garage plus petit sert de rangement pour les vélos, motos, fraiseuses, ....
- Un local à ski parfaitement équipé, un local pour les chaussures et autres habits.
- Télévision et internet par câble
- Terrain de 911 m²
Niché dans un environnement calme et verdoyant, ce chalet offre une retraite paisible tout en étant proche des pistes de ski et des commodités d'Anzère. La route est une route sans issue donc à trafic réduit. Son architecture en bois s'intègre parfaitement dans le paysage alpin, créant une harmonie entre luxe moderne et nature environnante.
Que ce soit comme résidence principale, secondaire pour les amoureux de la montagne ou comme investissement locatif haut de gamme, ce chalet exceptionnel représente une opportunité rare sur le marché immobilier d'Anzère. Disponible immédiatement, il n'attend que vous pour écrire sa prochaine histoire.
Angaben
Details zur Konstruktion
Parkett
Unverbaubar
Panoramasicht
Ländlich
Berge
Ausstattungen
Balkon(e)
Terrasse(n)
Barbecue
Lift
Einstellhallenplatz
Skiraum
Sauna
Cheminée
Hell
Moderne Küche
Ihr Ansprechpartner






























