A PROPOS DU BIEN
Cet appartement, de conception moderne et construction récente, séduit par ses matériaux au-dessus de la moyenne. Des panneaux solaires viennent d'être installés afin de diminuer les charges de PPE. Le bien, de par sa situation, est atteignable par deux rues, une au Nord et une au Sud. Quartier résidentiel où il fait bon vivre, idéal pour pour une personne seule et/ou jeune couple.
Balcon spacieux.
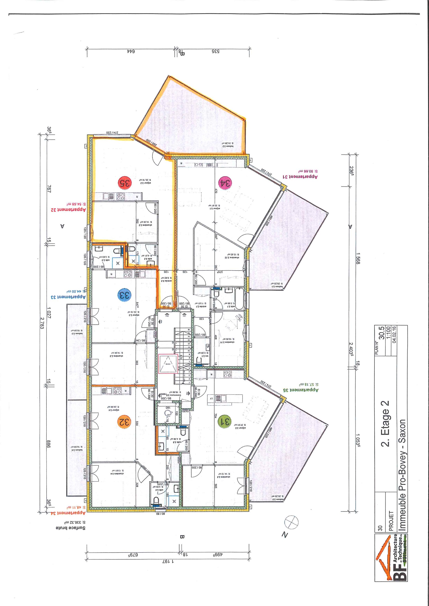
Description de l'appartement (n°35)
- Hall de distribution avec armoire incorporée
- Salle de douches
- Chambre
- Cuisine ouverte sur salon (plan de travail en granit), accès sur le balcon de 31 m²
- Cave
1 place de parc extérieure au prix de Fr. 10'000.--
Le bien est actuellement loué au prix de Fr. 12'000.-- par an (sans l'acompte de charges) + Fr. 720.-- par an pour la place extérieure.
A VISITER ABSOLUMENT !
Caractéristiques
Détails de la construction
Parquet
Dégagée
Forêt
Montagnes
Alpes
Équipements
Balcon(s)
Silencieux/tranquille
Verdure
Parking public
Accès pour handicapés
Ascenseur
Parking souterrain
Cuisine ouverte
WC visiteurs
Cave
Armoires encastrées
Triple vitrage
Lumineux
Cuisine agencée
Plaques vitrocéramiques
Four
Réfrigérateur
Congélateur
Lave-vaisselle
Téléphone
Téléréseau
Panneaux photovoltaiques
Fibre optique
Connexion Internet
Stores électriques
Interphone
Eclairage extérieur
Distances
Votre contact









